Ayurvedic Hospital
Project details
This project involves the design and execution of a new single-family home for a family of three. The site of the hospital is situated in a region that is distant from the city centre and features a blend of Kerala's traditional styles. The hospital is intended to merge with the family's residence. The objective was to create a hospital that retains its identity while incorporating traditional elements.
My contributions have been instrumental in shaping the overall vision and design of the project. I oversaw every aspect of architecture and construction administration, through furnishing and styling.
- ▪Designed using AutoCAD
- ▪Designed using SketchUp
Exterior Architecture



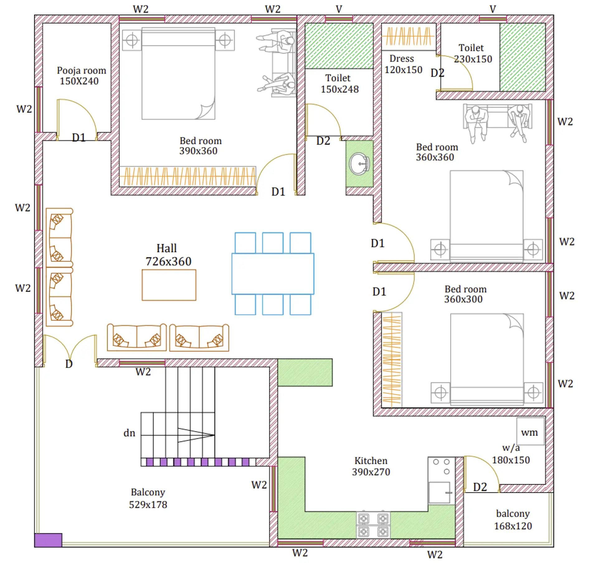
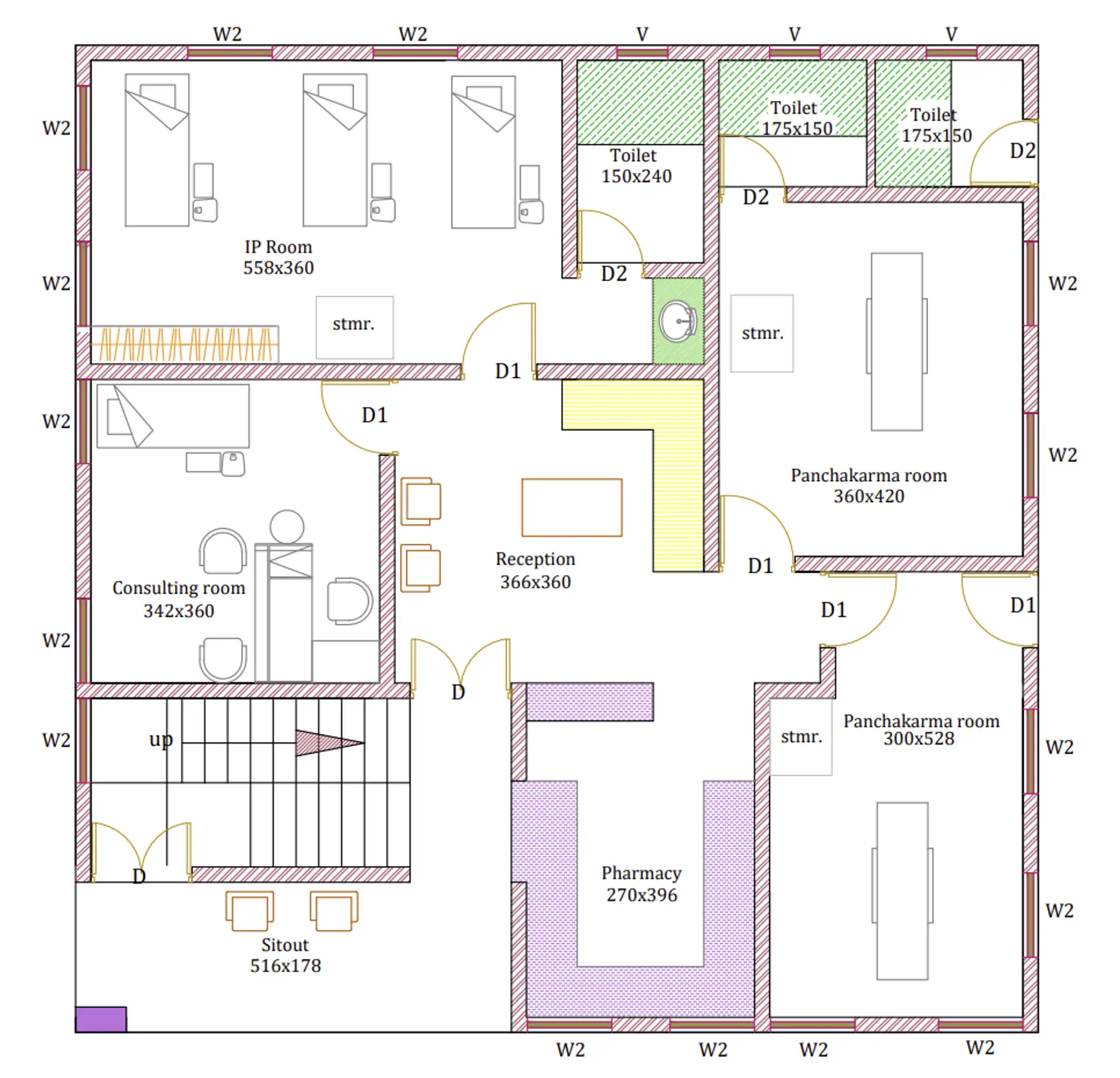
Floor Plans
Level 0
Level 1
Level 2
Level 3Results
The project was a great success. The project was completed on time, and the client was very satisfied with the final result. The design plan was executed effectively, and the resulting space has exceeded expectations. The team also finished construction under the calculated budget.